Riyadh Conference Palace

Architectural & Interior

A residential area in Saudi Arabia situated nearby to the castle Qasr an Nasriyah and the government office of Ministry of Foreign Affairs



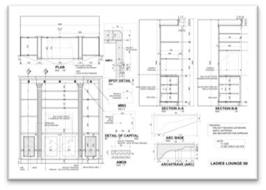
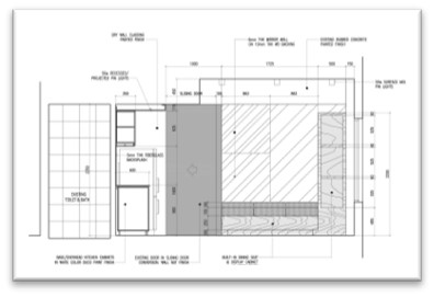
- Interior walls shop drawings in collaboration with Saudi Oger Limited.

Quality engineering provider

Need engineering services?