King Abdullah University of Science and Technology

Architectural & Interior

text

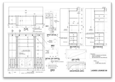
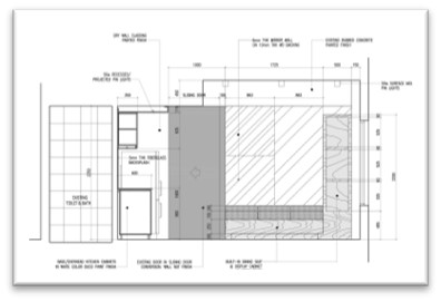
- Interior walls shop drawings in collaboration with Saudi Oger Limited.

Quality engineering provider

Need engineering services?